Einzigartiges Juwel in Bestlage von Groß-Flottbek

Category
Home, Projekte
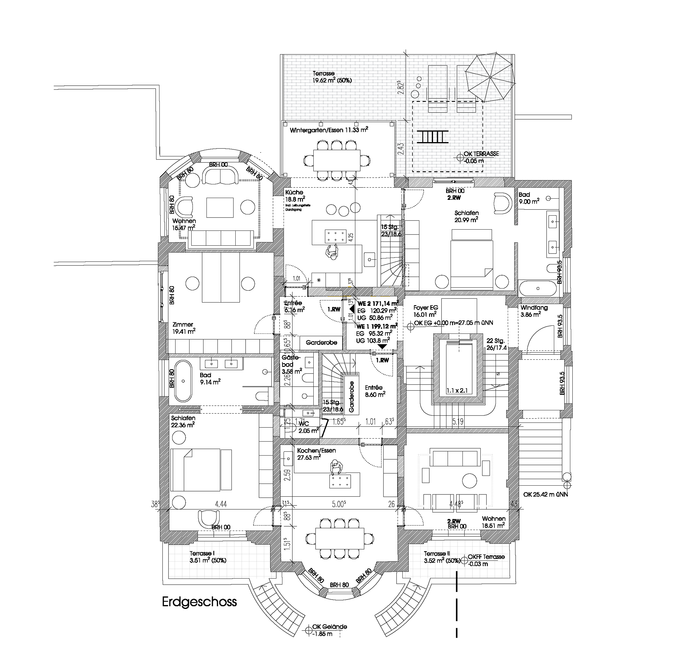
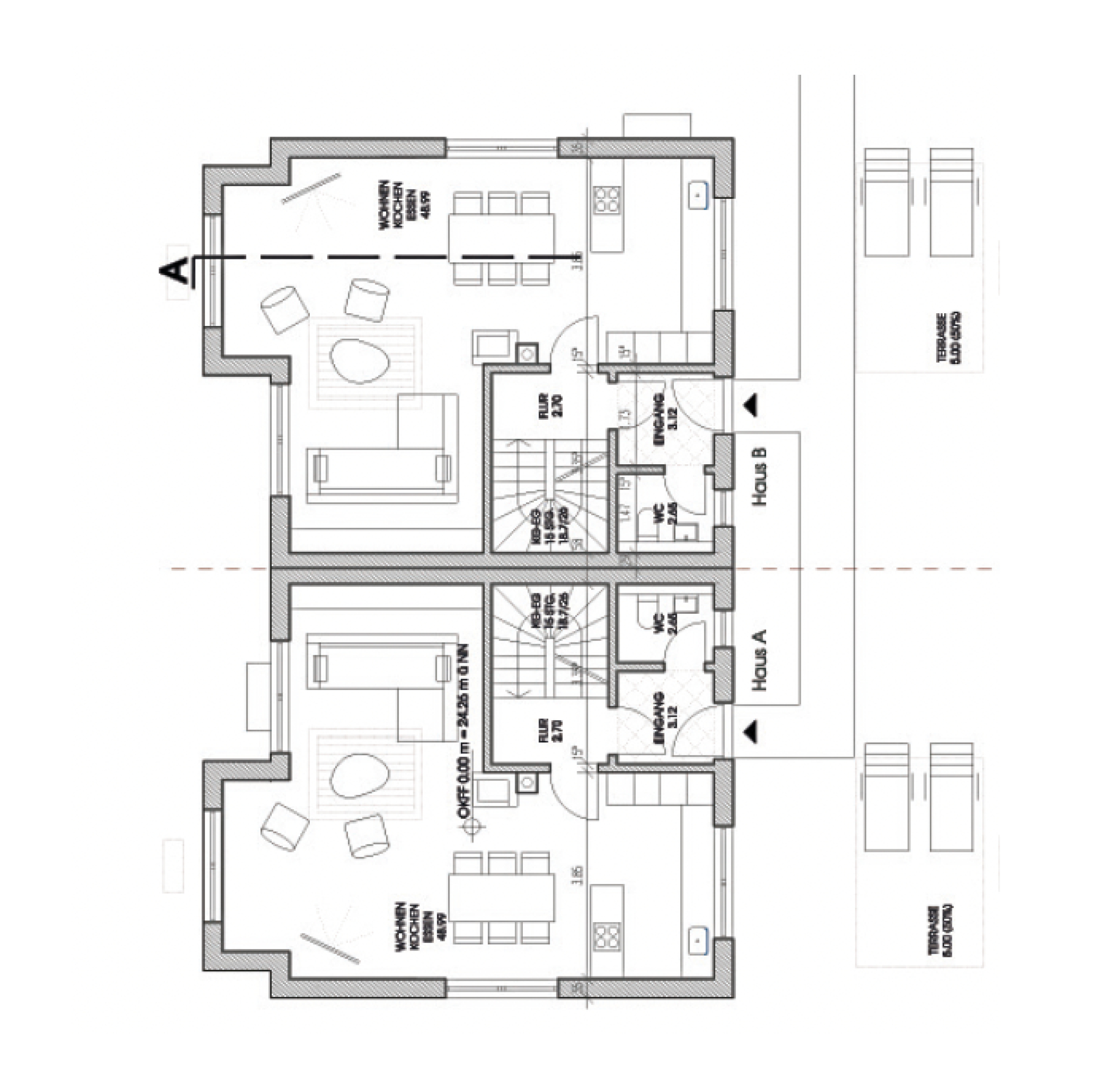
Luxus-Wohnbauprojekt mit Baugenehmigung

Umfassende Sanierung von fünf Wohneinheiten im bestehenden Herrenhaus sowie Neubau von vier exklusiven Doppelhaushälften. Gesamtwohnfläche: 1.282 m².

 

Ausführliche Unterlagen erhalten Sie auf Anfrage.
Das Projekt richtet sich ausschließlich an gewerbliche Bauträger, Bauunternehmen und Investoren.